AÑO
TIPO
SUPERFICIE
DESARROLLO
ESTADO
2013
Edificio de Vivienda Multifamiliar
1414m2
Proyecto, Dirección y Construcción
Obra Finalizada
Obra Nueva
GASCON 245
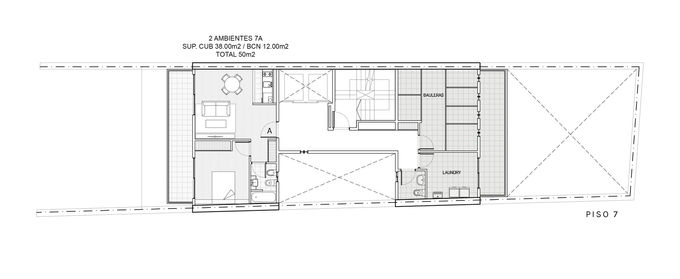
DEPARTAMENTOS DE 1, 2 y 3 AMBIENTES
PLANTA BAJA + 7 PISOS
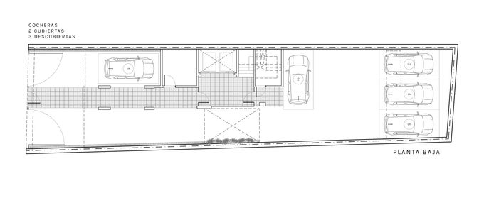
Cocheras Cubiertas (2)
Cocheras Descubiertas (3)
FACHADA DEL EDIFICIO
Revestimiento Acrílico Texturado
Cerramiento de balcones de vidrio templado con barandas de aluminio
Aberturas de aluminio Línea Módena terminación anodizado
Portón de acceso vehicular a control remoto
Puerta principal en vidrio con cerradura
INTERIOR DEL EDIFICIO
Ascensor electromécanico de última generación, cabina de acceso inoxidable, espejo y piso de granito
Porcelanato y cerámicos de 1era Calidad en accesos y terrazas
TERMINACIONES
PISOS Y REVESTIMIENTOS
Piso Flotante de 1era Calidad en Estar-Comedor y Dormitorios
Porcelanato y cerámicos de 1era Calidad en baños, cocinas, balcones y terrazas
AMOBLAMIENTOS
Muebles de cocina integrales en melamina con mesada de granito
Frente de placares integrales corredizos en melamina y/o espejados con interiores completos con cajoneras y accesorios
ARTEFACTOS y GRIFERIAS
Artefactos sanitarios marca FERRUM
Griferías marca FV
Pileta de cocina marca MI PILETA
SERVICIOS INDIVIDUALES
Cocinas a Gas marca DOMEC
Agua Caliente por Termotanque Individual

Cucha Cucha 2026 (C1416CJT)
Buenos Aires | Argentina
+54 (011) 4588-0444/3377
© 2023 | Infante Construcciones SA















